X House/Cote Architects

Địa điểm: Huế
Kiến trúc sư: Cote Architects
Diện tích: 300 m²
Năm: 2025
Ảnh: HungHoa

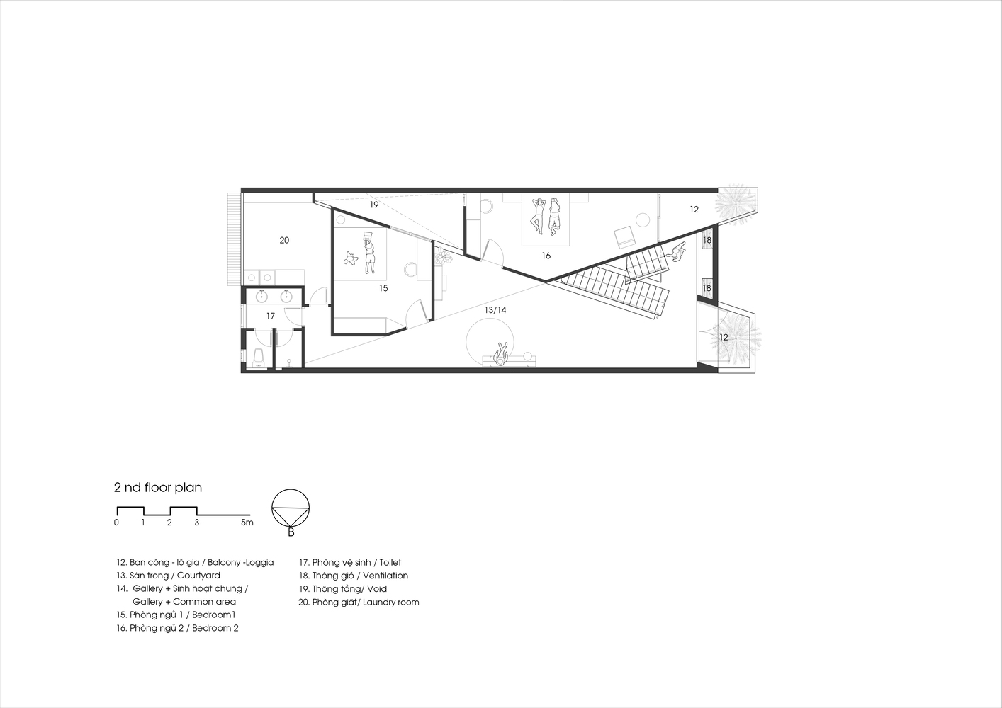
Ngôi nhà được bố trí trên một khu đất hình chữ nhật bằng cách chồng ghép hai khối tam giác đối xứng, dịch chuyển dọc theo trục không gian hình chữ X. Hình học đặc trưng này thiết lập mối quan hệ năng động giữa không gian đặc và không gian rỗng ở tầng trệt và các tầng trên. Các chức năng khép kín - như phòng ngủ, phòng học, phòng tắm, kho chứa đồ và khu thay đồ - tạo thành các khu vực đặc, trong khi các không gian mở và linh hoạt - bao gồm phòng khách, khu vực bếp-ăn, sân trong, phòng trưng bày, thư viện và khu vực sinh hoạt chung - tạo thành không gian rỗng, khuyến khích sự tương tác và trải nghiệm chung.



Những khối kiến trúc lồng ghép này được bao bọc trong một lớp vỏ bê tông cốt thép nguyên khối, tạo nên ý tưởng "ngôi nhà trong nhà". Lớp vỏ bê tông đóng vai trò như một lớp đệm khí hậu, bảo vệ nội thất khỏi ánh nắng gay gắt của phương Tây và khí hậu nhiệt đới của Huế, đồng thời lọc ánh sáng ban ngày, thông gió và đảm bảo sự riêng tư thông qua các ô cửa được bố trí cẩn thận. Ánh sáng và bóng tối thay đổi liên tục làm sống động các bề mặt bê tông thô, cho phép người sử dụng cảm nhận thời gian và không khí suốt cả ngày. Ánh sáng và bê tông cùng nhau tạo nên một bố cục kiến trúc tĩnh lặng, làm nổi bật không gian trưng bày và nuôi dưỡng một môi trường sống trầm tư.




Trục hình chữ X cũng giúp tổ chức lưu thông, kết nối trực quan và vật lý các khoảng trống trên nhiều tầng, đồng thời tạo khung cảnh nhiều lớp và chiều sâu không gian bên trong khối bê tông. Thay vì tối đa hóa diện tích xây dựng, thiết kế cố tình ưu tiên các khoảng trống – không gian để đọc sách, nghe nhạc, suy ngẫm và tụ họp gia đình bán ngoài trời. Bằng cách giảm diện tích sàn khép kín để ưu tiên không gian mở, ngôi nhà đạt được hiệu suất môi trường tốt hơn thông qua thông gió tự nhiên được kiểm soát, đủ ánh sáng ban ngày và vi khí hậu dễ chịu hơn. Theo nghĩa này, ít không gian xây dựng hơn đồng nghĩa với trải nghiệm sống phong phú hơn.


X House đề cao độ bền, giá cả phải chăng và hiệu quả vận hành. Cấu trúc bê tông nguyên khối lộ thiên giúp giảm thiểu độ phức tạp trong xây dựng và bảo trì, đồng thời tôn vinh vẻ đẹp thô mộc của vật liệu. Các chiến lược thiết kế thụ động – thông gió tự nhiên, tối ưu hóa ánh sáng ban ngày và cách nhiệt – giảm sự phụ thuộc vào hệ thống cơ khí, góp phần tiết kiệm năng lượng lâu dài. Dự án này chứng minh rằng, với nguồn lực khiêm tốn kết hợp với bố trí không gian hợp lý và thiết kế thích ứng với khí hậu, có thể tạo ra một ngôi nhà bền vững và giàu cảm xúc trong bối cảnh đô thị đông đúc.











Ý kiến của bạn