Tam Đảo Retreat House/Idee architects

Địa điểm: Tam Đảo, Phó Thọ
Kiến trúc sư: Idee architects
Diện tích: 2000 m²
Năm: 2023
Ảnh: Triệu Chiến



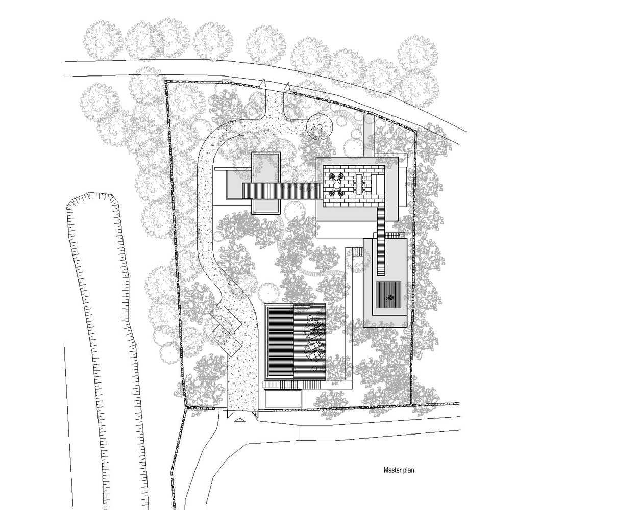
Khu nghỉ dưỡng bao gồm ba khối nhà riêng biệt, nằm gọn trong các khoảng hở của tán cây và được sắp xếp dọc theo sườn dốc. Một khối nhà hai tầng được ghép nối với hai khối nhà một tầng, được liên kết bằng những cây cầu thép và kính nhẹ, duy trì mối liên hệ liền mạch giữa không gian nội thất và khu rừng xung quanh.


Thiết kế hướng đến sự rõ ràng và tinh tế, cho phép kiến trúc hòa mình vào cảnh quan. Các góc đặc được thay thế bằng kính hai mặt, tạo ra không gian "không góc cạnh", mở rộng tầm nhìn và làm mềm ranh giới giữa bên trong và bên ngoài. Các bề mặt kính lớn hoạt động hiệu quả nhờ bóng râm tự nhiên từ tán thông và hướng nắng được tính toán kỹ lưỡng, trong khi bê tông thô và đá xám khai thác tại địa phương neo giữ tòa nhà vào địa hình.


Sân thượng, ban công và các khu vực chuyển tiếp mở đóng vai trò như những điểm tiếp xúc trực tiếp với cảnh quan, củng cố trải nghiệm sống giữa tầng tán giữa. Hồ bơi vô cực rộng 50m² nằm ở phần dưới của khu đất, vừa là một yếu tố cảnh quan, vừa là một trải nghiệm đắm mình trong rừng.


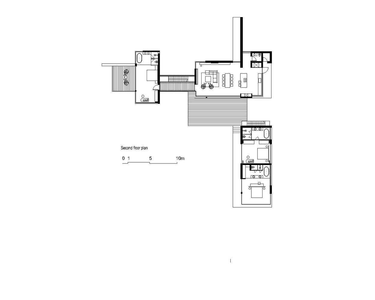
Về mặt chức năng, cụm sinh hoạt chính - bao gồm phòng khách, bếp và bốn phòng ngủ - được bố trí ở độ cao lớn hơn để có tầm nhìn tối ưu. Các thành phần phụ trợ và cảnh quan được đặt thấp hơn trên sườn dốc để giảm thiểu tác động lên địa hình tự nhiên.

Tam Đảo Retreat phản ánh phương pháp tiếp cận theo bối cảnh, trong đó hệ sinh thái của địa điểm định hình nên hình thức kiến trúc, cho phép công trình hòa mình vào địa hình tự nhiên một cách yên tĩnh.











Ý kiến của bạn