A.K Home/PAU Architects

Địa điểm: TPHCM
Kiến trúc sư: PAU Architects
Diện tích: 70 m²
Năm hoàn thành: 2023
Ảnh: Quang Đạm

Bối cảnh Đô thị & Ý tưởng Thiết kế – Chủ nhà hình dung một ngôi nhà khiêm tốn nhưng vẫn đậm chất cá tính - một nơi để trở về, hòa mình vào nhịp sống của khu phố. Dựa trên hình khối bất thường của khu đất, đội ngũ thiết kế đã tạo ra một mặt tiền lùi vào được tạo thành từ các mặt phẳng so le, sử dụng các đường chéo làm ngôn ngữ hình ảnh chủ đạo. Khối nhà dần lùi vào trong, tạo thành một vùng đệm đô thị và cho phép ánh sáng ban ngày nhẹ nhàng len lỏi vào bên trong.


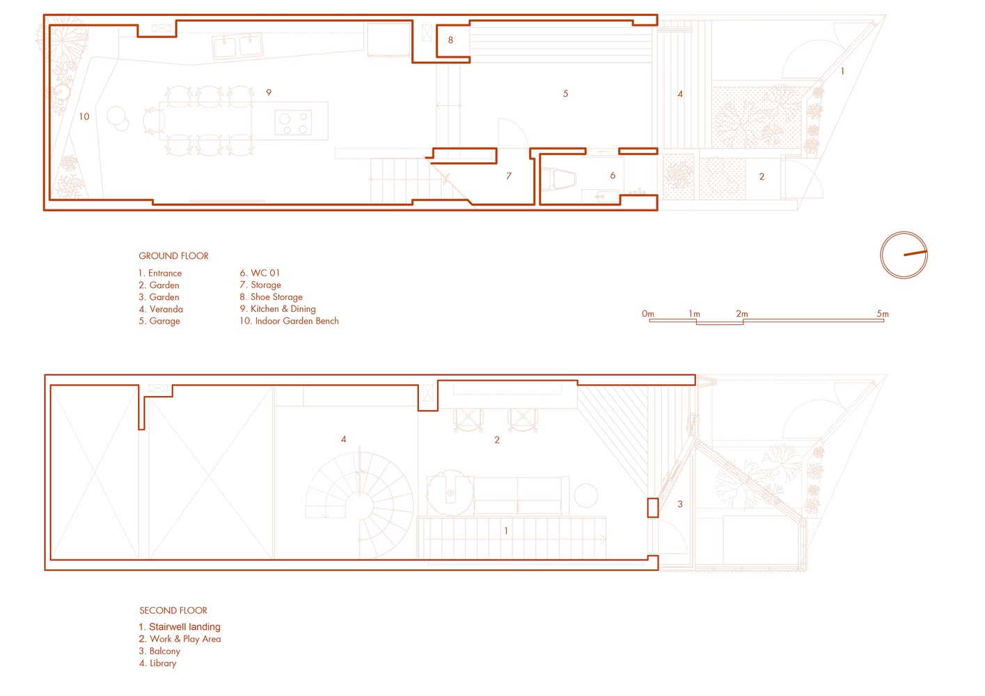
Tổ chức không gian – Ngôi nhà được thiết kế theo cấu trúc lệch tầng, tạo nên sự linh hoạt trong không gian và tăng cường thông gió và chiếu sáng tự nhiên. Tầng trệt được dành riêng cho bếp, khu vực ăn uống và chỗ đậu xe. Phía sau nhà mở ra một vùng đệm xanh mang ánh sáng tự nhiên và luồng không khí sâu vào không gian nấu nướng - không chỉ là nơi ăn uống mà còn là nơi thư giãn hàng ngày để nạp lại năng lượng. Tầng lửng là phòng khách và được kết nối bằng cầu thang cong - một giải pháp nhỏ gọn mang đến sự chuyển động mềm mại cho không gian. Tầng này cũng đóng vai trò là khu vực đa năng để làm việc, thư giãn và tụ họp. Nhờ lối sống linh hoạt của người ở, tầng lửng nhỏ gọn trở thành một môi trường năng động, chung thay vì bị phân chia.


Tầng trệt gồm hai phòng ngủ, mỗi phòng đều có phòng tắm riêng và lối ra vào đón ánh sáng tự nhiên. Phòng ngủ chính tận dụng mặt tiền dốc để dẫn ánh sáng từ trên cao vào sâu trong phòng, thậm chí còn chiếu sáng phòng tắm qua giếng trời - vừa đảm bảo sự riêng tư vừa thông gió tự nhiên. Tầng thượng là không gian thư giãn, với khu vực tắm bán ngoài trời và các khu vực trồng cây rộng rãi, thể hiện niềm đam mê của chủ nhà dành cho cây xanh.

Chiến lược khí hậu và thông gió tự nhiên – Mặc dù diện tích hạn chế và bố cục lệch, thiết kế vẫn kết hợp một loạt các chiến lược khí hậu thụ động: Cấu hình chia tầng khuyến khích lưu thông không khí theo chiều dọc và chiều ngang; Khoảng lùi phía sau có chức năng như một giếng trời theo chiều ngang, cải thiện thông gió chéo; Các ô cửa được bố trí một cách chiến lược để cân bằng ánh sáng ban ngày và sự riêng tư; Các túi cây xanh được đan xen trên tất cả các tầng để điều chỉnh nhiệt độ và độ ẩm, giúp ngôi nhà thích nghi với bối cảnh nhiệt đới.

Mặt tiền & Vỏ công trình – Mặt tiền được bao bọc bởi lưới thép nhiều lớp - vừa đóng vai trò như một tấm chắn riêng tư trong bối cảnh xây dựng dày đặc, vừa là một yếu tố thẩm mỹ cân bằng sự bất đối xứng của lô đất. Lớp vỏ này giúp giảm thiểu tầm nhìn trực diện từ ngôi nhà đối diện và làm dịu ánh nắng mặt trời chiếu vào sân trước, tạo điều kiện tối ưu cho sự phát triển của các loại cây lá xanh tươi mà gia chủ yêu thích.

A.K House là một phản ứng tinh tế cho cuộc sống đô thị quy mô nhỏ - nơi mọi chi tiết đều được cân nhắc kỹ lưỡng để cân bằng giữa chức năng không gian và thể hiện cá tính. Thông qua sự tương tác giữa ánh sáng, không khí, cây xanh và quy hoạch đa tầng, ngôi nhà mang đến trải nghiệm sống ấm áp và đầy cảm hứng, bắt nguồn từ sự gần gũi và cởi mở.











Ý kiến của bạn