The Gap House / Atelier TAs

Địa điểm: Đồng Nai
Kiến trúc sư: Atelier TAs
Diện tích: 107 m²
Năm: 2025
Ảnh: Quang Dam


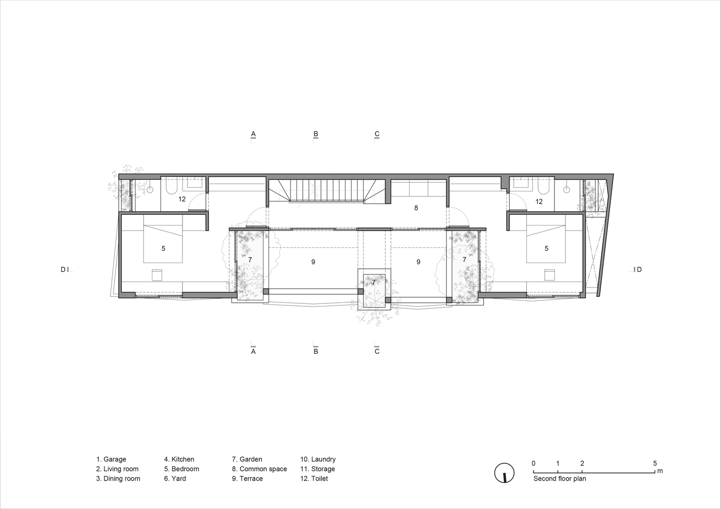
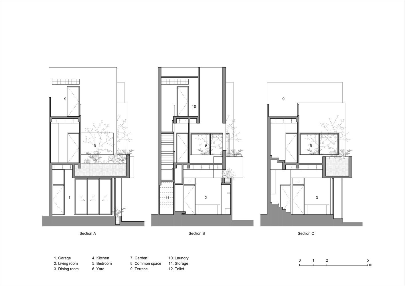
Ngoài việc đáp ứng các nhu cầu chức năng cơ bản, thách thức không chỉ đơn thuần là tạo ra một không gian trống về mặt hình thức. Câu hỏi cốt yếu là làm thế nào để khoảng trống này có thể hoạt động như một môi trường sống thực sự - một môi trường nuôi dưỡng sự thoải mái, kết nối và thư giãn. Thông qua nghiên cứu kỹ lưỡng về vi khí hậu địa phương và bối cảnh xung quanh, một khoảng trống lớn được bố trí ở trung tâm tầng hai, được kết nối với hệ thống giếng trời hình ống thẳng đứng kéo dài xuyên suốt tòa nhà. Những giếng trời này không chỉ cung cấp ánh sáng ban ngày; chúng còn hoạt động như các trục thông gió tự nhiên, đón gió, giảm thiểu sự hấp thụ nhiệt trực tiếp từ mặt trời và cải thiện sự thoải mái về nhiệt độ. Kết quả là, các không gian bên dưới luôn mát mẻ và thông thoáng, rất phù hợp với khí hậu nhiệt đới.

Khối kiến trúc được tổ chức dựa trên các nguyên tắc lồng ghép và xếp lớp, tạo ra sự tương tác có chủ ý giữa đặc và rỗng. Mỗi ô cửa và vách ngăn đều được định vị chính xác để cân bằng giữa sự riêng tư với ánh sáng ban ngày tối ưu và thông gió chéo. Sự cân bằng này giúp ngôi nhà không trông giống như một khối nhà nặng nề, kín mít; thay vào đó, nó hiện lên như một cấu trúc nhịp nhàng có khả năng "thở" và thích ứng với môi trường xung quanh.






Trình tự không gian được mở ra thông qua nhịp điệu xen kẽ giữa các khu vực sinh hoạt chung và riêng tư. Khi bước vào, người ta sẽ bắt gặp khu vực sinh hoạt chung bao gồm phòng khách và nhà bếp; phía sau đó là các không gian ngủ riêng tư hơn. Đi lên theo chiều dọc, cầu thang dẫn đến một sân trong rộng lớn ở trung tâm - một không gian sinh hoạt chung được mở rộng, đóng vai trò là "trái tim" của ngôi nhà - trong khi các phòng ngủ riêng tư nằm ở hai đầu. Cách bố trí các không gian chung - riêng - chung - riêng này tạo ra một trải nghiệm không gian nhiều lớp, trong đó mức độ tương tác được điều chỉnh một cách linh hoạt. Cấu hình như vậy củng cố mối liên kết gia đình đồng thời bảo tồn những khoảnh khắc riêng tư. Trong bối cảnh đô thị hiện đại, nơi lối sống có xu hướng ngày càng khép kín, việc tạo ra các không gian trung gian khuyến khích sự tương tác và hòa mình với ánh sáng và gió trời trở nên cần thiết hơn bao giờ hết.

Về mặt vật liệu, đá tự nhiên tông màu tối được sử dụng làm vật liệu hoàn thiện chính, gợi lên cảm giác vững chắc và bền bỉ. Sự biến đổi vốn có trong màu sắc của đá tạo ra những bề mặt chuyển đổi tinh tế, giàu chiều sâu thị giác. Tầng trệt sử dụng tông màu đậm hơn để truyền tải sự ổn định và vững chắc, trong khi các tầng trên được xử lý bằng các gam màu sáng hơn, mang lại cho tòa nhà vẻ ngoài tinh tế và thoáng đãng hơn. Trải nghiệm không gian do đó được dẫn dắt theo chiều dọc - từ bầu không khí trầm lắng, vững chắc bên dưới đến sân trong trung tâm sáng sủa hơn ở phía trên, nơi ánh sáng và gió trở thành những yếu tố định hình cuộc sống hàng ngày.











Ý kiến của bạn