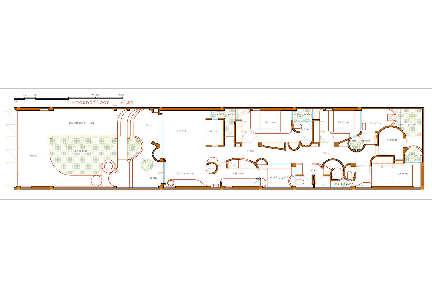
Nắng House/Trung tran Studio
(Vietnamarchi) - (Văn bản mô tả do KTS cung cấp) Nắng House là một ngôi nhà nhỏ, được xây dựng ở vùng ngoại ô nông thôn Hà Nội , nơi quá trình đô thị hóa đang diễn ra ngày càng nhanh chóng, dần phá vỡ cấu trúc nông thôn truyền thống.
14:03, 12/12/2025

Địa điểm: Hà Nội
Kiến trúc sư: Trung Trần Studio
Diện tích: 270m²
Năm: 2025
Ảnh: Triệu Chiến







Ngôi nhà được thiết kế cho một gia đình ba thế hệ điển hình ở nông thôn Việt Nam, bao gồm cha mẹ già, một cặp vợ chồng trẻ và con nhỏ. Ngôi nhà được xây dựng trên một khu vườn với nhiều cây cổ thụ; thiết kế giữ nguyên vẹn tất cả các cây cổ thụ hiện có.



Không gian sinh hoạt chính được lùi vào phía sau, nhường chỗ cho sân vườn và gara, cùng với khu vực uống trà ở phía trước. Không gian sinh hoạt chính bao gồm phòng khách, phòng thờ và phòng ăn ở giữa đất, kết nối với 4 phòng ngủ và không gian phụ trợ ở phía sau.

HOIKIENG19 House/Hinzstudio
(Văn bản mô tả do KTS cung cấp) Ngôi nhà ở Đà Nẵng được thiết kế như một không gian sống mở và linh hoạt, nơi ánh sáng, thông gió và sự gắn kết gia đình được sắp xếp lại một cách cẩn thận để đáp ứng khí hậu nhiệt đới và những hạn chế của một ngôi nhà phố đô thị hẹp. Dự án nằm trên một khu đất trống 5×21 m trong một khu dân cư ở Đà Nẵng. Khách hàng là một gia đình trẻ bốn người, gồm vợ chồng và hai con, đang tìm kiếm một ngôi nhà đơn giản và tiện nghi, hỗ trợ cuộc sống gia đình hàng ngày đồng thời khuyến khích sự tương tác và gắn kết.
L Villa – Khi bản sắc gia chủ trở thành ngôn ngữ kiến trúc
(Văn bản mô tả do KTS cung cấp) Trong bức tranh kiến trúc biệt thự tại Hà Nội – nơi đôi khi bị chi phối bởi những trào lưu "Tân cổ điển" phô trương, L Villa xuất hiện như một lối đi riêng đầy tinh tế và điềm đạm. Tọa lạc tại khu đô thị Ciputra Hanoi International City, công trình được đội ngũ Công ty Kiến trúc Pháp Việt (FVA) kiến tạo không chỉ là một chốn đi về, mà là một không gian sống được "đo ni đóng giày" theo cá tính và tư duy thẩm mỹ của gia chủ.
S House / MM++ architects
(Văn bản mô tả do KTS cung cấp) S House là một ngôi nhà nhỏ, yên tĩnh, đặt ra một câu hỏi đơn giản: làm thế nào chúng ta có thể sống nhẹ nhàng hơn, ngay cả trong sự đông đúc của thành phố? Tọa lạc trên một khu đất hẹp ở Tân Thuận Tây, Quận 7, ngôi nhà lấy cảm hứng từ cuộc sống nông thôn ở Đồng bằng sông Cửu Long - một lối sống được định hình bởi thời tiết, cây cối, không gian mở và các nghi lễ hàng ngày hơn là những bức tường. Mặc dù được bao quanh bởi các con phố đô thị, S House mang lại cảm giác gần gũi hơn với một khu nghỉ dưỡng sinh thái hơn là một ngôi nhà thành phố: một nơi trú ẩn nông thôn riêng tư với những nét hiện đại tinh tế.
Bảo Lộc House/Tad.atelier
(Văn bản mô tả do KTS cung cấp) Bảo Lộc House là một ngôi nhà nhỏ nằm ở vùng ngoại ô Bảo Lộc, nơi đặc điểm của cảnh quan nông thôn vẫn còn giữ được phần lớn nét đặc trưng, chưa bị đô thị hóa. Khu đất nằm trên địa hình dốc thoai thoải dẫn xuống sông, tạo điều kiện tự nhiên thuận lợi để xây dựng một môi trường sống gắn bó mật thiết với cảnh quan xung quanh.
TD2 House/Hinzstudio
(Văn bản mô tả do KTS cung cấp) Dự án khám phá cách tổ chức không gian như một phương thức để nuôi dưỡng tình cảm gia đình và niềm tin tôn giáo trong cuộc sống thường nhật. Ngôi nhà nằm trên khu đất rộng 4x20m, thu hẹp dần về phía sau, thể hiện những hạn chế quen thuộc của nhà ống ở Việt Nam: bố cục sâu, dài với khả năng tiếp cận ánh sáng tự nhiên và thông gió hạn chế. Tòa nhà chỉ có hai mặt thoáng: mặt tiền hướng Đông đón ánh nắng buổi sáng và mặt bên giáp với một con hẻm nhỏ, tạo cơ hội đưa thêm ánh sáng ban ngày vào bên trong.










Ý kiến của bạn