Nam House / 90odesign


Địa điểm: Đồng Nai
Kiến trúc sư: 90odesign
Diện tích: 81 m²
Năm: 2025
Ảnh: Quang Trần

Bên cạnh ba phòng ngủ rộng rãi, khách hàng còn yêu cầu một khu vực phòng khách-phòng ăn lớn và thoáng đãng, phù hợp cho các buổi tụ họp gia đình nhiều thế hệ. Ánh sáng tự nhiên và việc tích hợp các yếu tố xanh cũng là những ưu tiên hàng đầu.


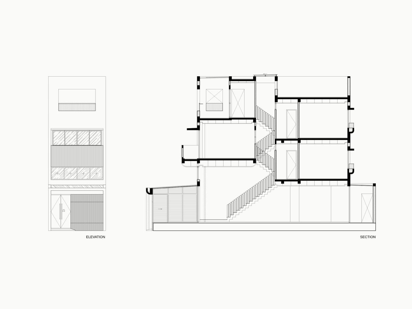
Khối nhà chính được đặt ở trung tâm khu đất, tạo thành hai khoảng sân ở phía trước và phía sau. Bên trong, một chuỗi các tầng lệch nhau được thiết kế cùng với một giếng trời lớn ở trung tâm để đưa ánh sáng và không khí vào sâu bên trong. Ở tầng trệt, cầu thang và nhà bếp được bố trí dọc theo một bên, cho phép luồng không khí lưu thông từ sân trước ra phía sau.

Điểm nhấn đặc biệt của dự án là trần nhà bằng gỗ nhân tạo uốn cong, trải dài liên tục từ không gian nội thất ra ban công ngoài trời. Mặt tiền phía trước được trang trí bằng cây xanh nhiều lớp ở cổng vào, ban công và sân thượng, trong khi mặt tiền phía sau cũng có cây xanh trồng bên ngoài cửa sổ. Những lớp cây xanh này giúp lọc ánh nắng trực tiếp và duy trì môi trường bên trong mát mẻ hơn.


Trong suốt dự án, nhóm thiết kế tập trung vào tính bền vững và tính thực tiễn, định hình từng không gian theo nhu cầu hàng ngày của khách hàng đồng thời duy trì một ngôi nhà có ánh sáng tốt, thông gió tự nhiên và gần gũi với thiên nhiên.











Ý kiến của bạn