Vesp House/Story Architecture

Địa điểm: TPHCM
Kiến trúc sư: Story Architecture
Diện tích: 160 m²
Năm: 2025
Ảnh: Quang Dam

Ý tưởng này xuất phát từ cảm giác hào hứng và hạnh phúc của chủ nhà mỗi sáng thức dậy trong một chiếc lều, ngắm nhìn thiên nhiên và bầu trời bên ngoài. Vì vậy, phòng ngủ được thiết kế với một cửa sổ kính lớn ở tầng 3, có tầm nhìn ra những mái nhà đối diện hướng lên bầu trời. Khung cửa được thiết kế giống như khung cửa của một túp lều, nằm trong phòng ngủ. Kéo rèm lên có thể nhìn ra bầu trời và cây xoài cổ thụ đã được trồng nhiều năm trên mảnh đất được giữ lại. Khu vực ban công của phòng ngủ được thiết kế như một nơi để thư giãn, nhâm nhi cà phê để tận hưởng những khoảnh khắc riêng tư, và tự do ngắm nhìn thiên nhiên từ trên cao.



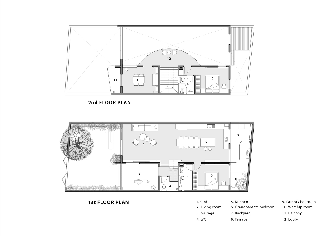
Ngôi nhà được thiết kế lùi vào trong để có sân trước trồng cây, và để chủ nhà có thể chăm sóc và ngắm nhìn những chiếc xe máy Vespa yêu thích của mình. Tầng một bố trí bếp và phòng khách; khu vực bếp được thiết kế theo kiểu không gian mở để tạo thêm không gian cho ánh sáng chiếu vào nhà. Phòng ngủ của bố mẹ được thiết kế ở tầng hai. Vì bố mẹ là người chăm sóc phòng thờ nên phòng thờ cũng được bố trí ở tầng này. Phòng thờ được thiết kế không gian mở lên đến mái nhà để tạo không gian trang nghiêm và tránh những điều cấm kỵ phía trên phòng thờ. Phòng ngủ của em gái và chủ nhà được thiết kế ở tầng ba.

Khu bếp và bàn ăn là không gian sinh hoạt chính của gia đình, vì vậy chúng được thiết kế theo kiểu không gian mở lên đến mái nhà. Không gian mở này giúp khu vực bếp tạo cảm giác thoải mái khi gia đình cùng sinh hoạt nhiều người một lúc. Hành lang các tầng, cửa sổ phòng ngủ và ban công phòng ngủ đều có thể mở ra không gian mở này, tạo sự kết nối xung quanh không gian mở đó và kết nối với khu vực bếp ở tầng 1, tạo nên mối liên kết bền chặt giữa các thành viên trong gia đình thông qua sự kết nối không gian.

Hình dáng bên ngoài ngôi nhà và các đường nét bên trong được thiết kế lấy cảm hứng từ những đường cong của xe Vespa, tạo nên sự mềm mại nhẹ nhàng. Màu xi măng và sự kết hợp với màu gỗ tạo nên cảm giác ấm áp và hoài cổ cho ngôi nhà.











Ý kiến của bạn