Bối Bống House/TRAN TRUNG Architects

Địa điểm: Đà Nẵng
Kiến trúc sư: TRAN TRUNG Architects
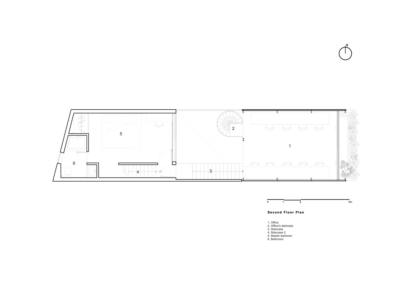
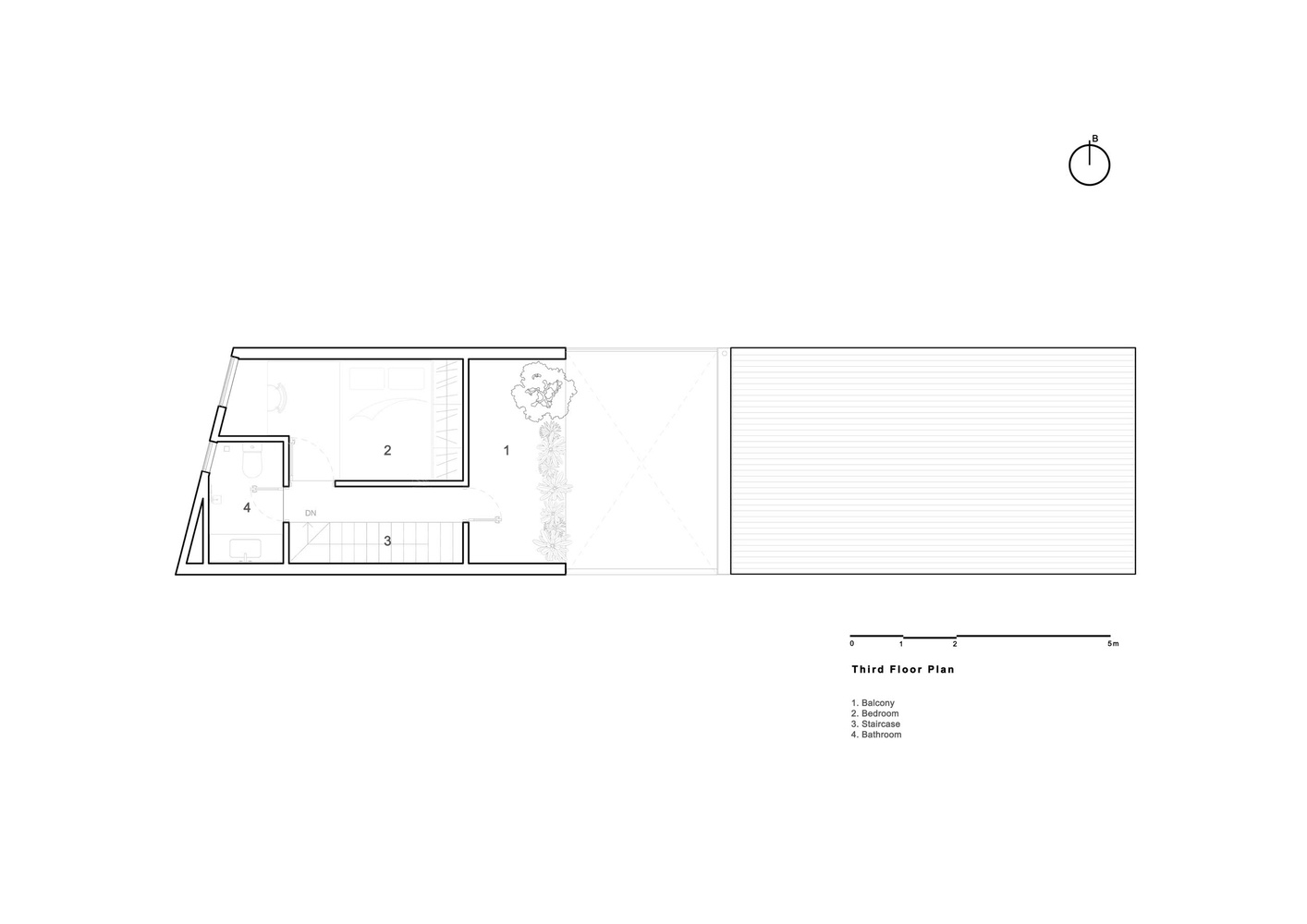
Diện tích: 80 m²
Năm: 2025
Ảnh: Khanh Nguyen

Nằm nép mình ở cuối một con hẻm nhỏ, ngôi nhà được thiết kế tách biệt khỏi sự ồn ào náo nhiệt của thành phố, cho phép tâm trí con người tìm thấy sự tĩnh lặng và sáng suốt. Bên trong, không gian sống được bố trí nhẹ nhàng, thu hút mọi giác quan - âm thanh, ánh sáng, những làn gió mát, hương thơm tinh tế và những trải nghiệm xúc giác - hòa hợp với cảnh quan thiên nhiên và dẫn dắt cư dân trở về với nhịp sinh học nguyên thủy của chính mình.

Trên diện tích khiêm tốn chỉ 80 m², ngôi nhà hiện thực hóa ý tưởng về sự cộng sinh giữa không gian sống và không gian làm việc. Hai khối nhà tưởng chừng như độc lập được kết nối bởi một khu vườn trung tâm, nơi ánh sáng, gió, thiên nhiên và con người hội tụ. Mỗi ngày trôi qua trở thành một bản giao hưởng tĩnh lặng, được điều phối bởi nhịp điệu của cuộc sống đan xen với công việc.

Cốt lõi của ngôi nhà là mái dốc hướng vào trong, dẫn nước mưa từ hai bên qua các dây xích thép vào hệ thống thu gom để tưới tiêu và duy trì ao cá bên dưới. Mặt nước đóng vai trò như một thiết bị làm mát trung tâm tự nhiên: dưới ánh nắng mặt trời gay gắt, sự bay hơi tạo ra vùng đối lưu không khí thụ động, hút không khí mát hơn từ phía Đông và Đông Bắc vào trong nhà, nhờ đó làm giảm nhiệt độ tổng thể trong nhà vào mùa hè nóng bức ở miền Trung Việt Nam.


Tiếng gà gáy lúc bình minh, ánh nắng dịu nhẹ xuyên qua tán cây, những cơn gió mơn man trên da, tiếng mưa rơi tí tách trên mái nhà, và cảnh đàn gia súc lững thững trở về nhà lúc hoàng hôn - tất cả đều khơi dậy những cảm xúc nguyên thủy đã mất từ lâu trong cuộc sống đô thị. Trẻ em chạy nhảy tự do trong sân, học cách yêu thiên nhiên; người già tìm thấy sự bình yên bên cạnh vườn rau; người trẻ tìm lại nguồn cảm hứng giữa ánh sáng tự nhiên dồi dào.

Một đời sống nội tâm hài hòa và bền vững được vun đắp thông qua năng lượng của thiên nhiên - ánh nắng mặt trời, gió, dòng nước chảy, mưa rơi, tiếng chim hót, mùi gỗ và mùi đất. Những âm thanh và hương thơm này đánh thức tất cả các giác quan, đặc biệt là thính giác, khứu giác và trực giác. Khi nhắm mắt lại, tâm trí trở nên nhạy bén hơn, cho phép ta cảm nhận được những biến đổi tinh tế của thiên nhiên từng giờ, từng ngày, từng mùa - thay vì chỉ trải nghiệm thế giới thông qua thị giác.


Dự án này đóng vai trò như một thông điệp ủng hộ kiến trúc bền vững và sự cân bằng giữa con người, thiên nhiên và năng lượng - mang lại sự chữa lành đồng thời nuôi dưỡng ý thức trách nhiệm môi trường cho các thế hệ kiến trúc sư tương lai.











Ý kiến của bạn