Tent House/Nha Dan Architects

Địa điểm: Nha Trang
Kiến trúc sư: Nha Dan Architects
Diện tích: 440 m²
Năm hoàn thành: 2024
Ảnh: Hiroyuki Oki

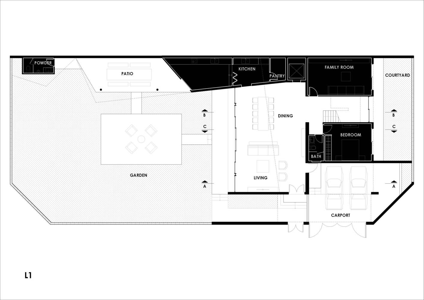
Chúng tôi đề xuất một loạt mái nhà trải dài giữa hai bức tường chính, giống như một tấm vải căng trên một khung cứng. Chiến lược này tạo ra một mặt bằng mở gần như không có cột. Những mái nhà này bao phủ cả không gian bên trong và bên ngoài, tạo ra một không gian sống liền mạch duy nhất trải dài từ khu vườn dưới đất lên đến tận phòng làm việc trên tầng cao nhất. Về cơ bản, các thành viên trong gia đình sẽ bước vào không gian chung nhiều tầng này ngay khi họ rời khỏi phòng ngủ.




Hướng tòa nhà và hình dạng mái được tối ưu hóa cho việc thông gió tự nhiên và đón ánh sáng ban ngày. Các khoảng hở giữa các mái nhà mang đến tầm nhìn ra cây xanh và cảnh quan đô thị phía xa, đồng thời cho phép ánh sáng tự nhiên chiếu sâu vào bên trong. Cửa chớp kính có thể điều chỉnh được giúp đón gió mát vào mùa hè, đồng thời ngăn nước mưa vào mùa mưa.


Những đặc điểm này tích tụ lại tạo nên cảm giác gắn kết gia đình cao hơn và kết nối với thiên nhiên - một điều hiếm thấy chỉ có ở vùng nông thôn Việt Nam.


Mẫu nhà hoàn thiện trông giống như một chiếc lều đồ sộ. Chúng tôi nghĩ rằng việc đặt tên cho dự án này là Tent House là hợp lý.











Ý kiến của bạn