Nhà 5 sân vườn/TAA DESIGN

Đơn vị thiết kế: TAA design
Địa điểm: Vũng Tàu, Việt Nam
Năm thiết kế - hoàn thành: 2022 - 2025
Nhóm thiết kế: Nguyễn Văn Thiên, Nguyễn Sỹ Tuấn, Trần Anh Huy, Võ Thành Sơn, Nguyễn Huỳnh Duyên, Võ Lê Cường, Mai Ngọc Minh, Mai Đức Duy, Kiên Nguyễn
Diện tích đất: 900m2
Tổng diện tích sàn xây dựng: 450 m2
Hình ảnh: Lệ Nguyễn





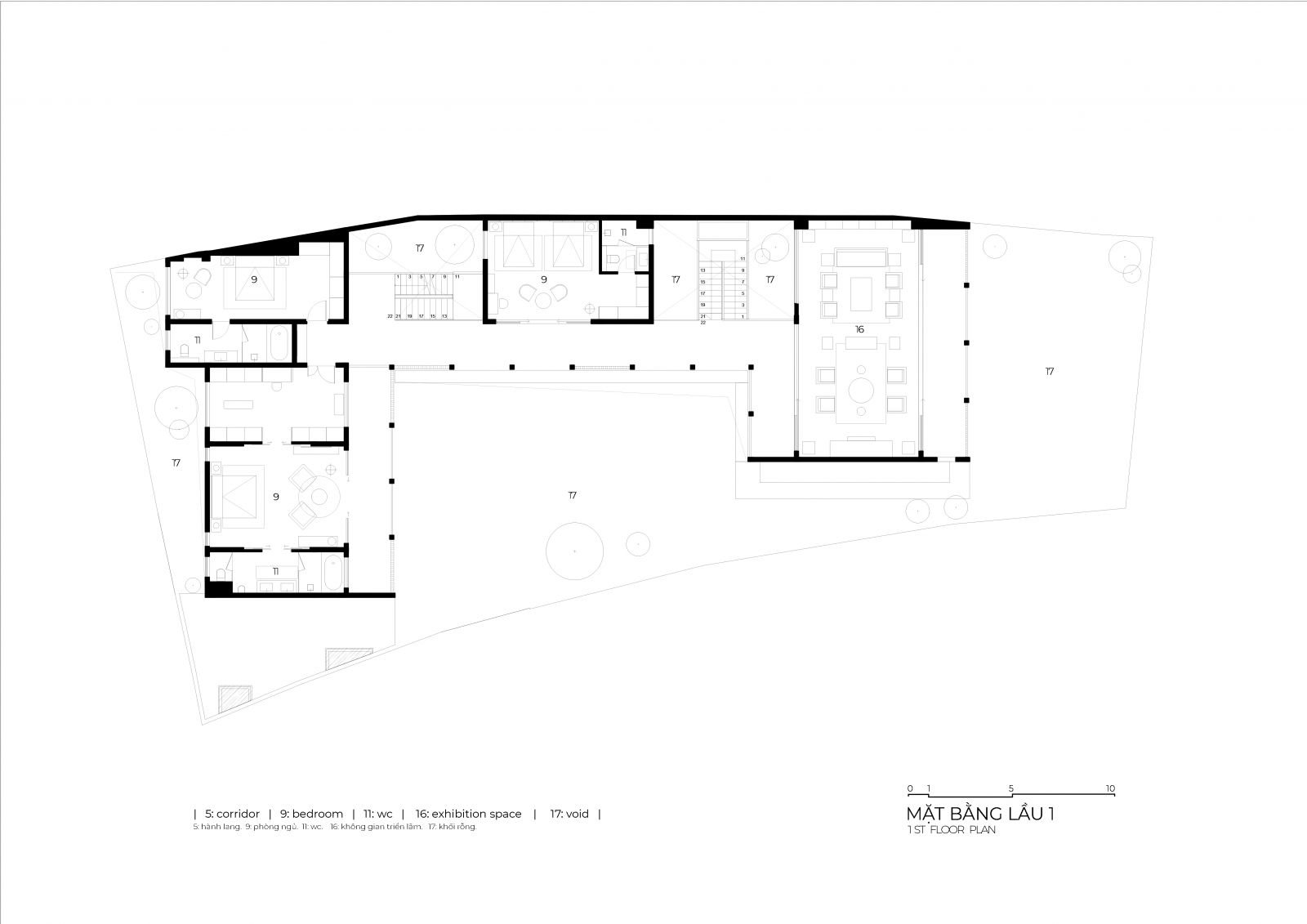
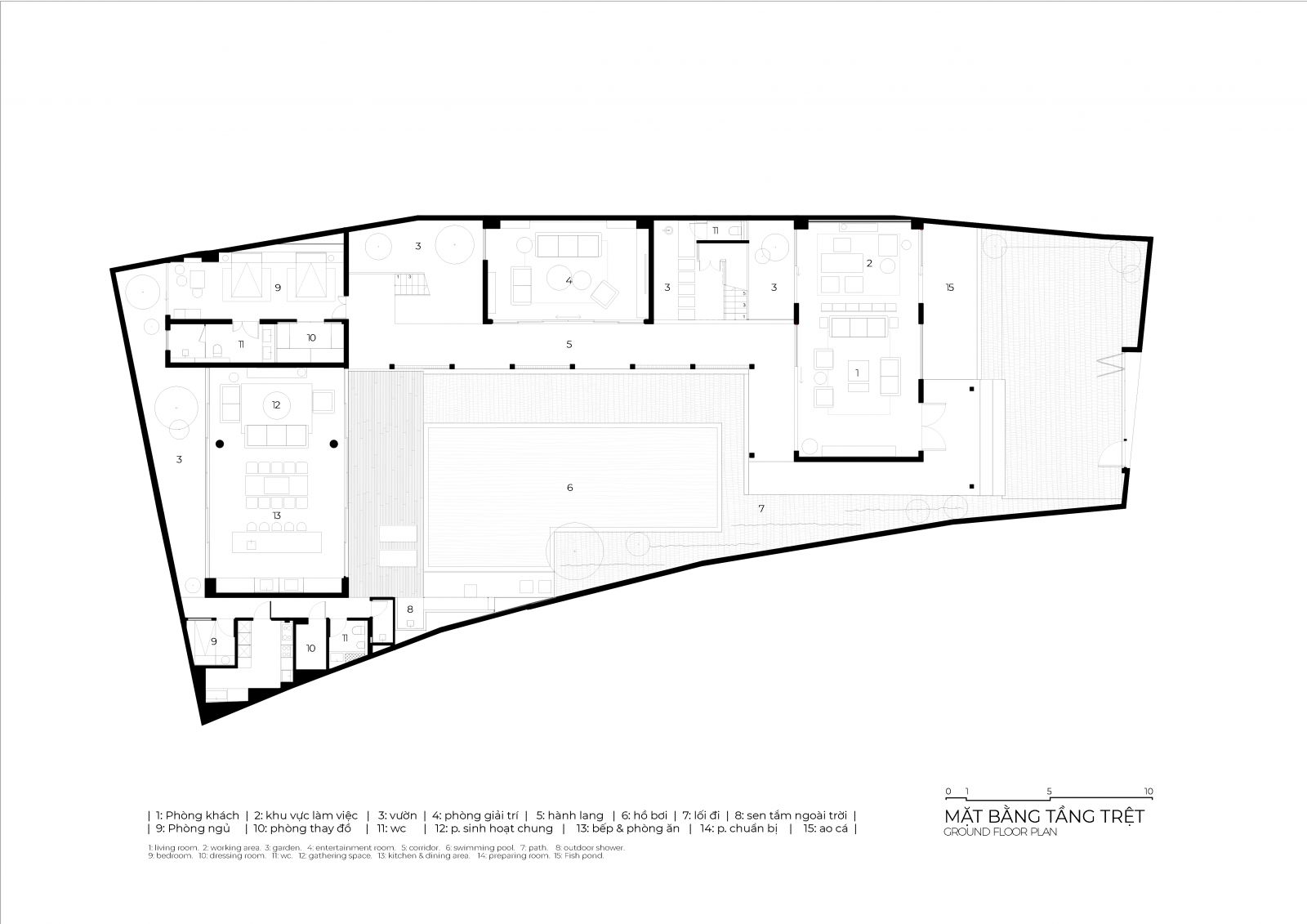
Ý tưởng của dự án được hình thành từ hệ thống 5 khoảng sân len lõi trong cấu trúc ngôi nhà, nơi sân không còn là phần phụ, mà trở thành không gian sống thực thụ. Các khoảng sân tạo nên những lớp chuyển tiếp mềm mại giữa trong và ngoài, giữa ánh sáng, gió, tĩnh và động, giúp ngôi nhà luôn có những “khoảng thở” tự nhiên. Sân trung tâm đóng vai trò như trái tim, kết nối các không gian và các mối quan hệ gia đình. Kiến trúc được tiết chế hình thức, lộ cấu trúc và vật liệu thô mộc, nhằm làm nổi bật bầu không khí sống. Trên nền tảng đó, tinh thần nhà ở truyền thống được chắt lọc và thích ứng với lối sống đương đại, đặt con người và cảm nhận sống vào trung tâm của kiến trúc.




Kiến trúc được tiếp cận như một cấu trúc sống, nơi chất lượng không gian nội tại và bầu không khí sống được ưu tiên. Không gian, cấu trúc và vật liệu cùng nhau nuôi dưỡng sự gắn kết gia đình và tạo nên một kiến trúc bền vững, có chiều sâu và giá trị theo thời gian.











Ý kiến của bạn