B.RED House / TOOB STUDIO

Địa điểm: Hà Nội
Kiến trúc sư: TOOB STUDIO
Năm: 2025
Ảnh: Triệu Chiến




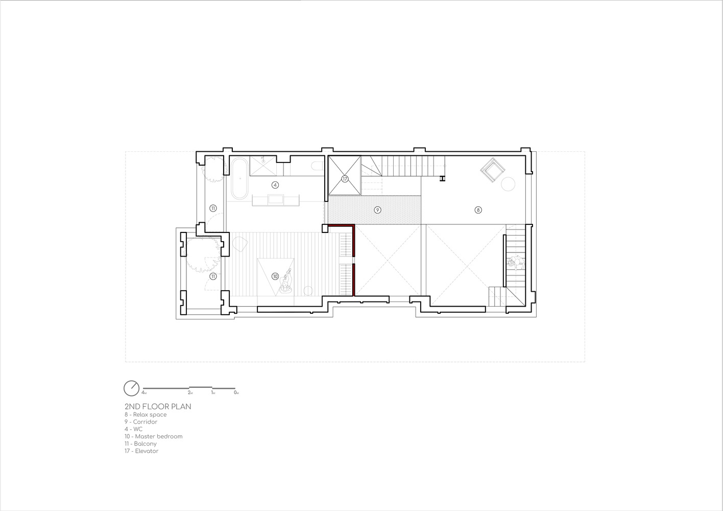
Mẫu nhà ban đầu của B.Red House là một kiểu nhà điển hình trong khu vực, được bố trí xung quanh một cầu thang trung tâm chia mặt bằng theo chiều dọc thành hai khối chức năng chính. Cấu trúc này gợi nhớ đến kiểu nhà phố đô thị đầu những năm 2000, thời kỳ mà kết cấu bê tông cốt thép được áp dụng rộng rãi.


Mặc dù độ cao sàn đồng đều đảm bảo tính rõ ràng về mặt chức năng và dễ thi công, nhưng chúng cũng góp phần tạo nên sự đơn điệu về không gian. Các "ô chức năng" khép kín này thường hạn chế sự tương tác, giảm tính linh hoạt và hạn chế tính cá nhân hóa trong cuộc sống hàng ngày.


B.Red House được hình thành như một thử nghiệm tái tạo đời sống kiến trúc từ bên trong - một sự can thiệp diễn ra lặng lẽ nhưng dứt khoát, mà không làm thay đổi diện mạo bên ngoài của kết cấu đô thị. Đội ngũ thiết kế tái cấu trúc nội thất thông qua một hệ thống các tầng sàn đa dạng, tạo ra sự chuyển tiếp nhiều lớp giữa các không gian chức năng. Lưu thông nội bộ được kết nối như một khung động, linh hoạt kết nối các mặt sàn so le, qua đó thiết lập tính liên tục về không gian và mang đến một luồng cảm quan mới mẻ xuyên suốt ngôi nhà.


Sự tương tác giữa các bề mặt vật liệu tự nhiên - gạch nung, thép, gỗ và bê tông trần - và sự điều chỉnh ánh sáng biến đổi không gian nội thất thành một không gian cân bằng, nơi sự tiếp xúc vật liệu và sự tĩnh lặng bên trong cùng tồn tại.











Ý kiến của bạn