Khai Son Duo Penthouse/Idee architects

Địa điểm: Hà Nội
Kiến trúc sư: Idee architects
Diện tích: 600 m²
Năm: 2025
Ảnh: Wuyhoang Studio




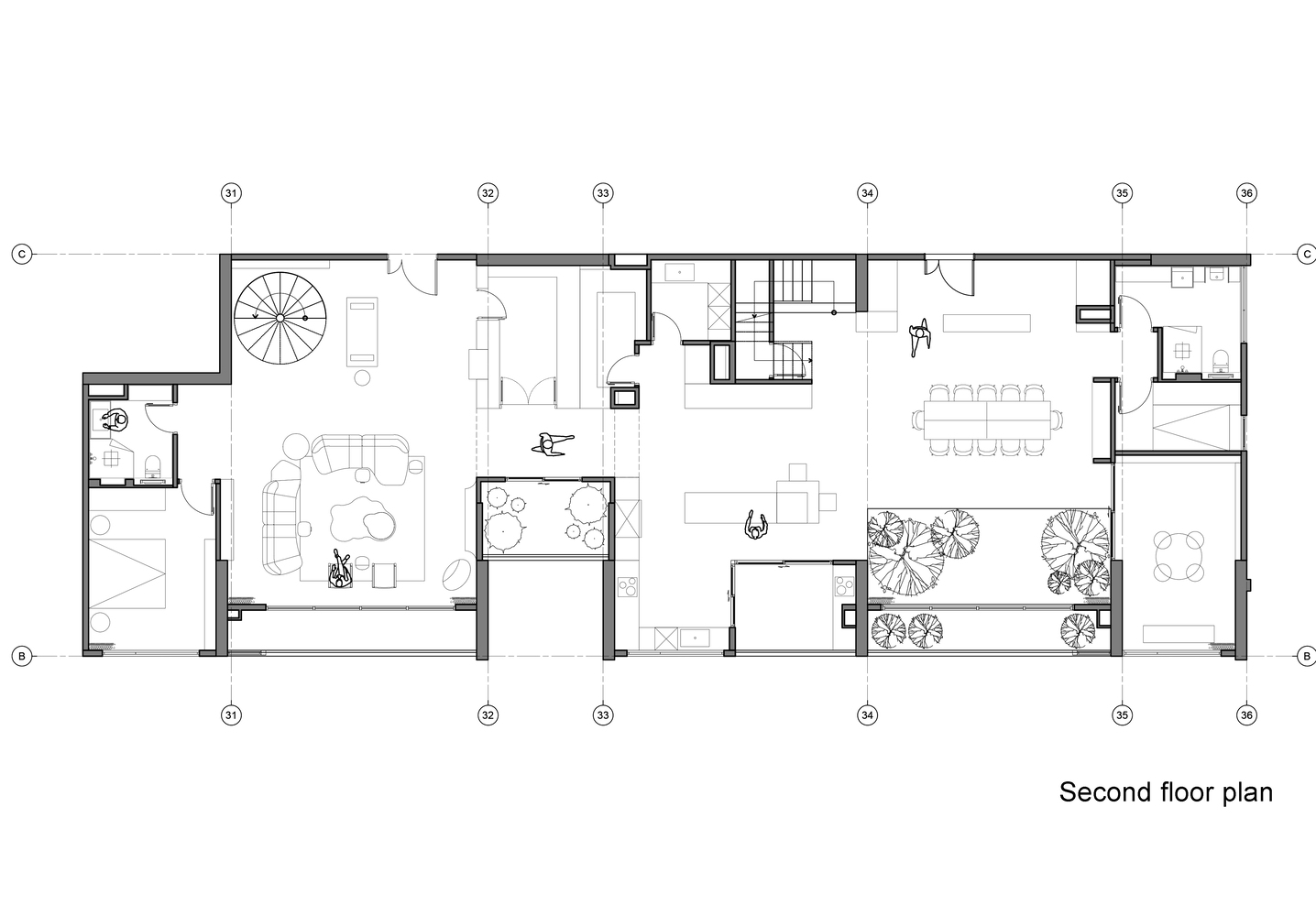
Một trục giao thông trung tâm định hình bố cục, chia căn penthouse thành hai phần: các khu chức năng chính ở một bên và các khu vực bổ sung ở phía còn lại với tầm nhìn bao quát thành phố. Ở cả hai đầu, một cầu thang thẳng và một cầu thang xoắn ốc mang tính điêu khắc kết nối hai tầng, cho phép di chuyển thông suốt khắp căn hộ.


Hai không gian thông tầng lớn với trần nhà cao gấp đôi phục vụ hai mục đích khác nhau: một không gian trở thành phòng khách rộng rãi, không gian còn lại là khu vườn trong nhà trải dài từ khu vực ăn uống và nhà bếp đến các phòng ngủ riêng. Sự liên tục theo chiều dọc được nhấn mạnh thông qua các hình khối tuyến tính trong phòng khách và những cây cao trong vườn, tạo ra một bầu không khí mở, vui tươi và tràn ngập ánh sáng cho cả trẻ em và các thành viên trong gia đình.

Thiết kế mang ngôn ngữ kiến trúc hiện đại với những đường nét mạnh mẽ, gọn gàng. Bề mặt đá travertine thô ráp tương phản với các yếu tố kim loại, tạo nên sự cân bằng giữa kết cấu thô mộc và chi tiết tinh tế. Căn hộ áp mái Khai Sơn thể hiện sự cởi mở, sáng tạo và ấm áp – một không gian sống cao cấp tôn vinh cả chiều cao và cuộc sống gia đình.











Ý kiến của bạn